Данные объекта
GR3096
Цена163.000 €
Регион Греция / о.Крит
ТипТаунхаус
Площадь76 м2
Приусадебный участок120 м2
Комнат2
Расстояние от моря5 км
До аэропорта14 км
Расстояние до центра17 км
Дополнительные параметры
Индивидуальное отопление
Паркинг+
С видом+
Подсобное помещение+
Камин+

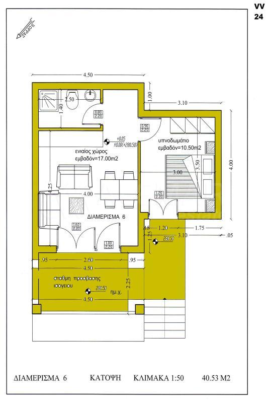
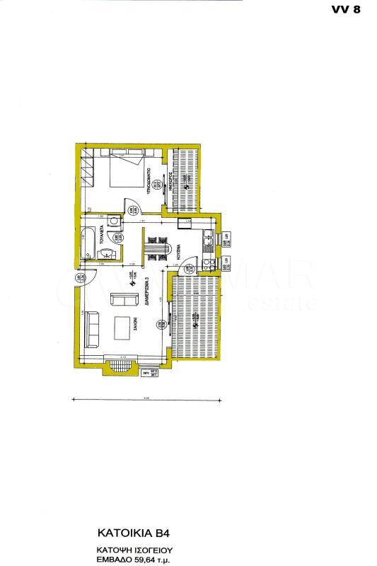
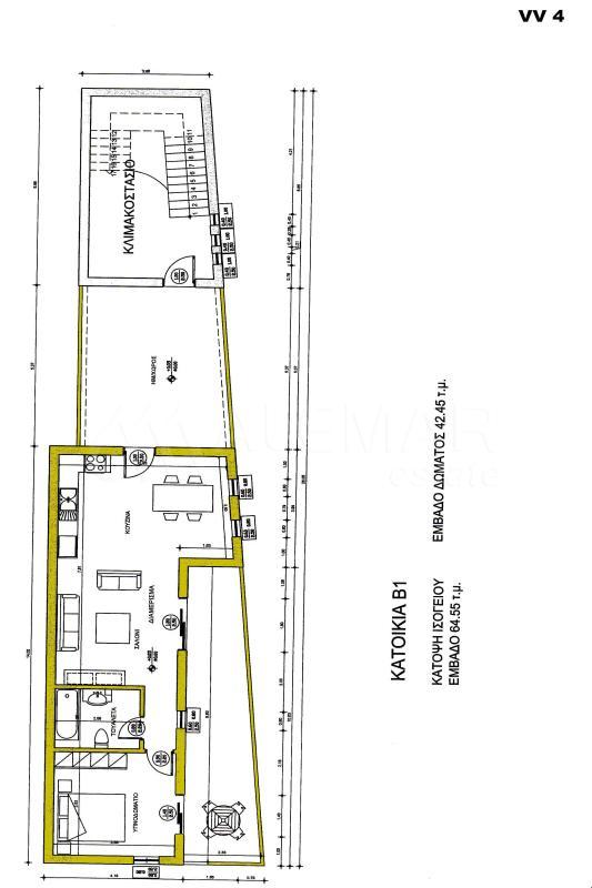
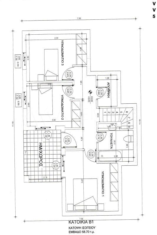
Агентство зарубежной недвижимости Alemar Estate предлагает Вниманию уважаемых покупателей таунхаус. Таунхаус состоит из просторного салона с оборудованным камином, кухни, двух спальных комнат, ванных комнат, кладового помещения и балконов, с которых открывается великолепный вид. Кроме того, имеется система горячего водоснабжения, основанная на солнечных батареях. На приусадебном участке имеется газон, два парковочных места.

    В этом же комплексе имеются еще пять таунхаусов :
    ТипПлощадь домаПолуподвалПлощадь цокольного этажаПлощадь первого этажаТеррасыСадПлощадь участкаЦена
    A.1.-Двухкомнатный 98 м2051 м247 м2037 м2109 м2208 000 ?
    A.2 -Двухкомнатный 87 м2046 м241 м231 м229 м2116 м2 185 000 ?
    A.3.-Двухкомнатный 87 м2046 м241 м248 м261 м2174 м2 193 000 ?
    A.4.-Двухкомнатный 82м24747 м235 м215 м2125 м2210 м2 218 000 ?
    A.5.-Двухкомнатный 82м24747 м235 м215 м2127 м2190 м2 218 000 ?
    A.6.-Двухкомнатный 82м24747 м234 м215 м2132 м2190 м2 218 000 ?
    A.7-Двухкомнатный 84м24848 м235 м215 м2126 м2184 м2 220 000 ?
    A.8.-Двухкомнатный 79м2045 м234 м210 м260 м2135 м2 170 000 ?
    A.9.-Двухкомнатный 79м2045 м234 м210 м250 м2110 м2 168 000 ?
    A.10.-Двухкомнатный 76м2045 м233 м210 м255 м2120 м2 163 000 ?
    A.11.-Двухкомнатный 82м2047 м234 м210 м265 м2115 м2 176 000 ?
    A.12.-Трехкомнатный 97м2058 м238 м224 м258 м2140 м2 208 000 ?
    A.13.-Трехкомнатный 97м2058 м238 м224 м258 м2140 м2 208 000 ?
    A.14.-Трехкомнатный 93м262 м2 46 м247 м213 м258 м2130 м2 220 000 ?

    Местоположение объекта на карте
    Оставить заявку по данному объекту или Добавить в закладки
    Галина Гострофиду
    Менеджер по продаже
    Греция Салоники
    Эгнатия 84, 2 этаж
    📞
    (+30) 2310-250065